Mieszkanie Gliwice, Pszczyńska
Gliwice Pokaż na mapie ›
Dodane: Wtorek, 20 Styczeń, 2026 21:01
220 000 zł
12941 zł/m2
Szczegóły ogłoszenia
- Kategoria: Mieszkania / Sprzedaż
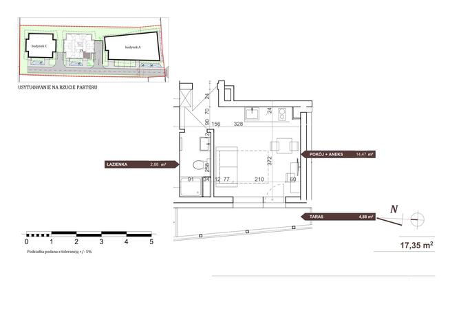
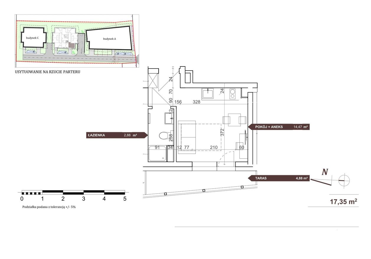
- Powierzchnia:17 m2
- Liczba pokoi:1 pokój
- Zabudowa:Blok
- Piętro :1 piętro
- Liczba pięter:Wieżowiec
- Rynek:Pierwotny
- Sprzedaż:Pośrednik
- Cena: 220 000 zł / 12941 zł/m2
Opis oferty
W ofercie sprzedaży mamy kawalerki w ścisłym Centrum Gliwic.Doskonała lokalizacja przy Politechnice Śląskiej dla studentów oraz osób ceniących się bliskość miasta.
Oferowane Mikro Apartamenty są wybudowane w podwyższonym standardzie wykończenia deweloperskiego.
Budynki zaprojektowane są w nowoczesnych technologiach zapewniających klientom wyjątkowy komfort użytkowania.
Poprzez zastosowanie wysoko energooszczędnych materiałów elewacyjnych zapewnione będą niezwykle niskie koszty eksploatacji.
Wszystkie lokale parterowe posiadają tarasy wykonane z wysokiej jakości płyt tarasowych oraz ogrody do wyłącznego korzystania przez ich właścicieli.
Cechy wyróżniające :
Nowoczesna i elegancka architektura oraz wysublimowany klimat apartamentowca
Pralnio - suszarnie do dyspozycji użytkowników dlatego nie ma konieczności montowania pralek w mieszkaniu
Monitoring całą dobę wraz z recepcją
Podwyższony standard wykończenia deweloperskiego, w tym silikonowe samo oczyszczające się i najtrwalsze tynki zewnętrzne, wszystkie instalacje wewnętrzne, grzejniki, TV/SAT, Internet
Wysokiej klasy tynki oraz wylewki
Wyszukany komfort użytkowania przy jednoczesnej wysokiej energooszczędności
Eleganckie wykończenie klatek schodowych i korytarzy
Nowoczesne windy komunikacyjne
Profesjonalne zagospodarowanie terenu wokół budynku, nasadzenia i pielęgnacja terenów zielonych przez profesjonalną firmę ogrodniczą.
Koszty utrzymania są niskie z racji tego, że budynek jest nowy.
Z zaliczkami na wodę około 450 zł miesięcznie.
Teren jest monitorowany, obok znajduje się kilka kawiarni, restauracja slow-food, przystanki autobusowe. Do Placu Krakowskiego jest 500 m.
Jest to świetna inwestycja pod wynajem, ponieważ mimo mniejszych metraży czynsze oscylują na poziomie 1500-1700 zł miesięcznie.
Wykończenie pod klucz
Do zaoferowania mamy kilka pakietów wykończeniowych dla osób którzy w krótkim czasie i niewielkim budżecie chcą przeprowadzić niezbędne prace.
Mamy również propozycje indywidualnego wykończenia dla klientów bardziej wymagających .
Kredytowanie
W ofercie mamy kilkanaście banków co daje możliwość dobrania najbardziej odpowiedniego kredytu hipotecznego. Możliwość kredytowania 100% zakupu- bez wkładu własnego.
Obsługa
BEZ PROWIZJI
Klient nie ponosi żadnych kosztów dodatkowych związanych z naszym pośrednictwem w zakupie.
Wystawiona cena jest ceną deweloperską.
Działamy w imieniu i dla dobra klienta, w związku z czym mamy możliwość negocjacji ceny i uzyskania promocyjnej oferty.
Masz pytania ?
Zapraszamy do kontaktu.
Zachęcamy również do obejrzenia mieszkania.
Umawiamy się w dogodnym dla Ciebie terminie.
Dyspozycyjność 7 dni w tygodniu.
Treść niniejszego ogłoszenia nie stanowi oferty handlowej w rozumieniu Kodeksu Cywilnego.
Numer oferty: 111
Sprawdź zainteresowanie tym ogłoszeniem
Wyświetlenia
Data dodania
Ostatnio widziany
Obserwujących
Wysłane zapytania
Odsłony telefonu
Powiadom o podobnych ogłoszeniach
Lokalizacja: Gliwice
Kategoria: Nieruchomości » Mieszkania » Sprzedaż
Cena: od 187000 zł do 253000 zł Powierzchnia : od 14 m2 do 20 m2
Chcę otrzymywać powiadomienia o nowych ofertach
- Wypromuj ogłoszenie
- Zgłoś naruszenie
- Drukuj ulotkę
- Edytuj/usuń ogłoszenie
- Udostępnij ogłoszenie
- Dodaj na Facebook






















